|
Euro Cat 1900
SAIL & POWER
Euro Cat
2400
SAIL & POWER
ALUMINUM PLANS & CUTTING FILES
CUSTOM FIBERGLASS PLANS AND MOLD PATTERNS AVAILABLE
The Euro Cat 19m & Euro Cat 24m were prepared as custom
designs for two experienced clients & these Cats STOCK PLANS
& CUTTING FILES are currently
available for construction in marine aluminum. Both designs feature our
accurate cutting files, complete assembly plans & engineering
drawings.
The easily driven hulls that are an important part of these
catamarans are ideally suited to both Sailing & Power methods
of propulsion. The Euro Cat 19m & Euro Cat 24m are ideal as luxurious family world cruisers
or as Charter Cats that would find a many customers world-wide.
The plans are among the most complete we have ever done & are
designed to meet any and all Classification Society rules
including Lloyds, Norske Veritas & all other world-wide
Classification societies.
|
|
Euro Cat 1900 |
Euro Cat 1900 |
Euro Cat 2400 |
Euro Cat 2400 |
|
LOA |
62' - 04" |
19.00 m |
78' - 08" |
24.00 m |
|
LWL. |
62' - 04" |
19.00 m |
78'-06" |
24.00 m |
|
BEAM
|
29'-00" |
8.84 m |
36'-00" |
10.97m |
|
HULL
BEAM
|
8'-03" |
2.51 m |
10'-06" |
3.20 m |
|
DRAFT. |
5'-03" |
1.06 m |
6'-06" |
2.00 m |

ABOVE: The sail plan is designed to be handled
by a family crew. The accommodation can be arranged
to accommodate a paid crew if that is required.

ABOVE: The wide open decks allow for various
for installation of Solar Panels & as well
generous lounging & dining out areas.



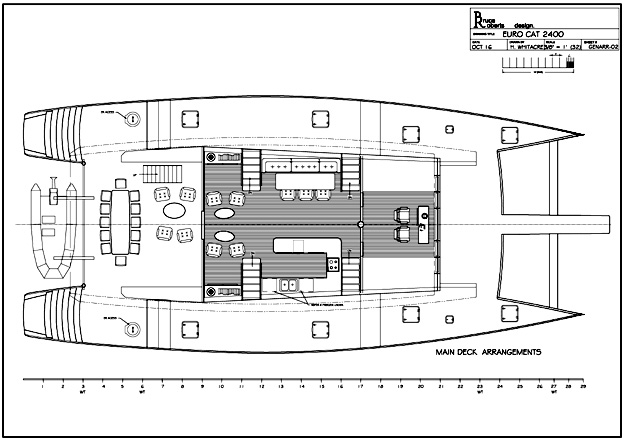
ABOVE: The accommodation
in the main and sleeping decks can be varied to suit the owners requirements.See the Super Study Plans package for more details.

ABOVE: New FLYBRIDGE VERSION Power Cat 1900 or 2400 custom plans and
CUTTING FILES.
CONTACT BRUCE for
more information.

ABOVE: New ketch VERSION Cat 1900 or 2400 custom plans and
CUTTING FILES.
CONTACT BRUCE for
more information.

CAT 700 - FIBERGLASS POWER SAILER.
SEE MORE
Euro Cat 1900
&
Euro Cat
2400
STUDY PLANS:
€114.oo
TO ORDER THESE STUDY PLANS
GO to
SPECIALS PAGE,
and
click on €114.oo
BUY NOW
button.
STUDY PLANS CONTAIN:
1. You can translate the text from the study plans into your
own language using GOOGLE
TRANSLATE
https://translate.google.com/#
You can also translate this page using the same
google
translation program.
2. EXTRA DISCOUNT: If
you order the STUDY PLANS and you later go ahead and order the
complete plans then we will allow you the FULL PRICE you paid
for the study plans off the cost of
THE COMPLETE PLANS &
PATTERNS or CUTTING FILES.
3.
COST OUT THE ENTIRE PROJECT: These
STUDY PLANS are intended to allow you to COST
OUT THE ENTIRE PROJECT before
you commit to the complete PLANS AND PATTERNS /
CUTTING FILES PACKAGE.
F ROM
CLIENT WHO JUST PURCHASED THE CAT 1900 PLANS
- January 2021
Just downloaded your plans.....only one
word...Amazing
I will keep in touch.....Thanks again
Carlos
|